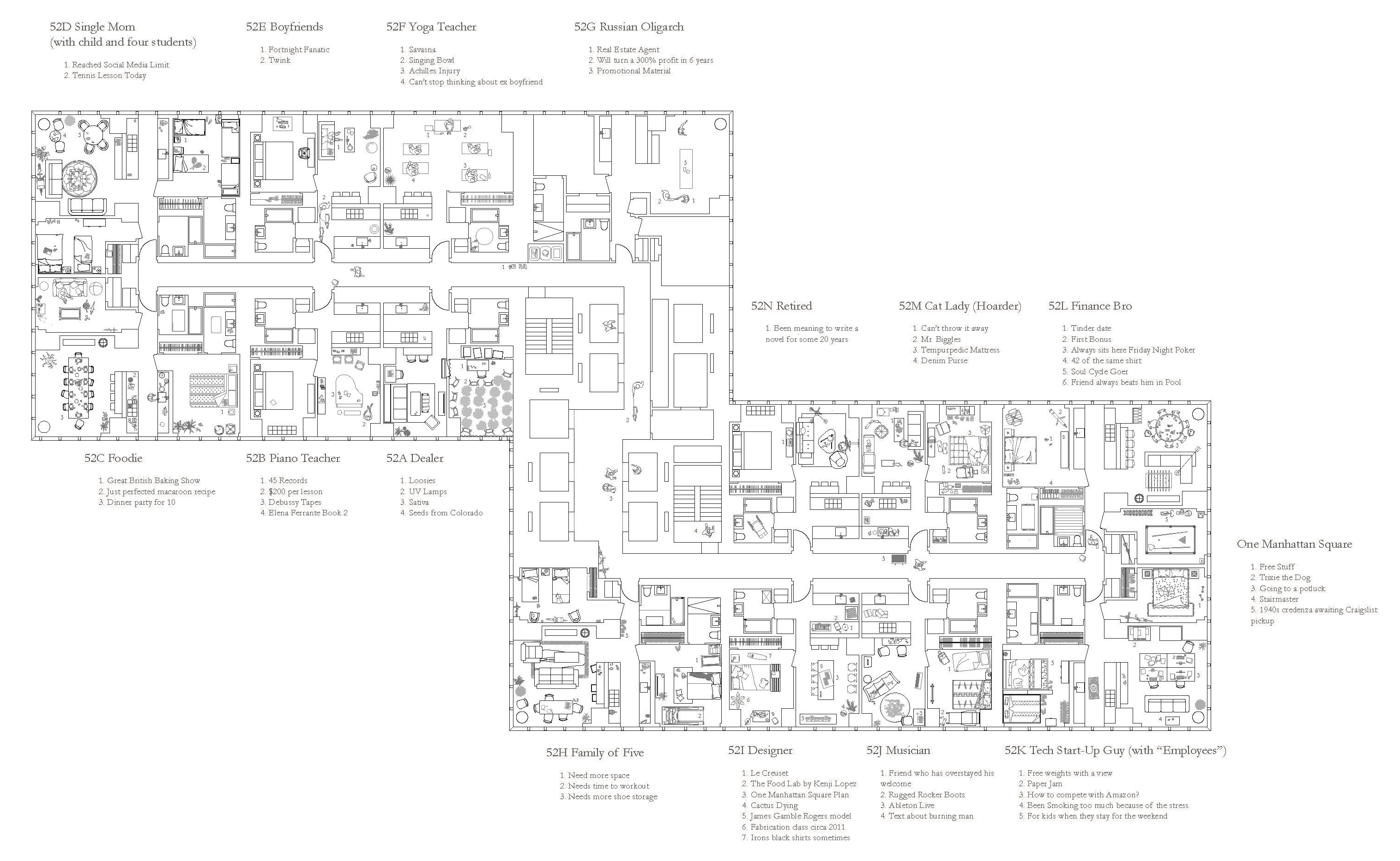
This short design-research projects explores alternatives for the architectural floor plan of ONE MANHATTAN SQUARE, the newest addition to NYC’s Manhattan luxury skyscrapers. The floor plan is a drawing type that can both “determine” but also “accommodate” life, it is both active form and stuff container. WE CAN FIT alters the existing plan by re-filling it with the everyday life elements that accompany NYC real-life; it speaks to the real living, the living we experience ourselves, through our friend’s stories, through Craigslist ads, all who reveal the less ideal and more fitting reality of the city. This project outcome is an architectural floor plan drawing for the exhibition form in rem at citygroup gallery in New York City, in collaboration with Lexi Tsien. More on the exhibitiob here.
